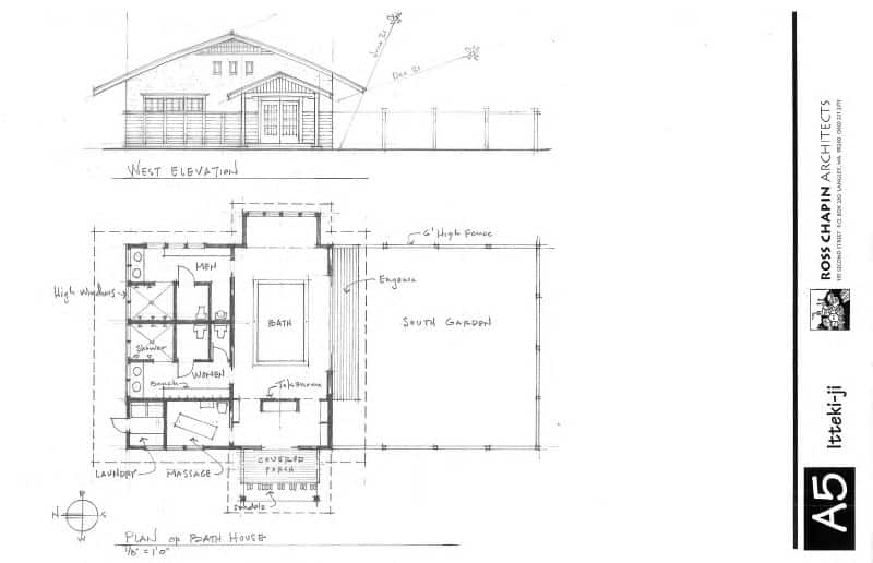
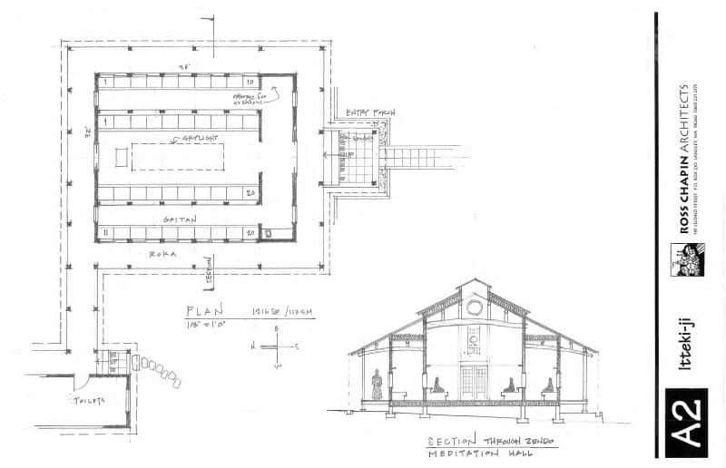
Tahoma Zen Monastery

Set on 60 quiet acres on Whidbey Island, Tahoma Monastery is a Zen training center serving practitioners in the U.S. and the West. In 1997, Ross Chapin was invited to Sogen-ji—the home monastery near Okayama, Japan—to experience monastic life firsthand. That time of immersion deeply informed the design process.

Working closely with Shodo Harada Roshi, the site plan was shaped according to traditional temple principles—carefully composed to support the rhythms of practice and the unfolding of daily life. Five buildings were designed to harmonize with the forested landscape of the Pacific Northwest while honoring their Japanese lineage.