Skip to content

ROSS CHAPIN ARCHITECTS

$0.00 0 Cart
  • Search Plans
  • Search Plans

 

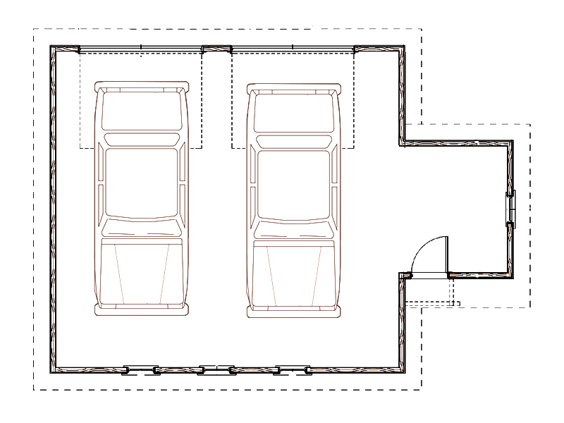
Two Gable Garage

This new conceptual design for a two-car garage goes well with the Three Gable House as well as homes with steep rooflines. A large attic accessible by a pull-down ladder is a practical addition.

 

Two Gable  704 2G

1.5 Story
704 SF
2-Car Garage

Footprint: 22′ x 34′

 

$450.00ADD TO CART

 

 

Floor Plan and Elevations PDF

 

 

 

Frequently Asked Questions

GoodFit License Agreement

Small homes that live large.


Front Page
Search Plans
GoodFit Living Blog
Frequently Asked Questions

Facebook Instagram Youtube Linkedin Pinterest

hello@goodfitplans.com

All images and content Copyright © 2026 Ross Chapin Architects. All rights reserved. • Site design and development by Grayson Design

 

Close Menu
HOME

Front Page
About
Views on Life & Work
In the Media
Awards

PROJECTS

Pocket Neighborhoods
Legacy Residential
Retreat Centers
In the Community 
Innovative & Emerging Projects 

SERVICES

Planning & Design 
Consultation & Critique
Teaching & Mentoring
Public Speaking

POCKET NEIGHBORHOODS HUB

Front Page
Essential Design Features
Interactive Examples
Beginnings
Pocket Neighborhoods Book
Codes for Courtyards
Dynamics of Community
Questions
Resources

THE GOODFIT COLLECTION

Front Page
Search Plans 
GoodFit Living Blog 
GoodFit FAQ