
Strawbridge
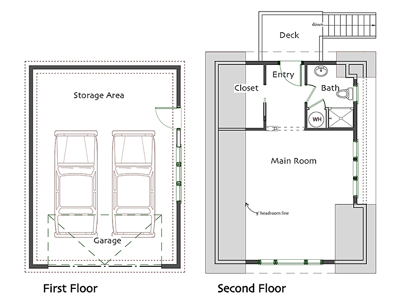
The Strawbridge is a versatile structure with a two-car garage below and a studio above. The garage is deep enough to allow for storage or a small workshop, while an exterior stair leads to a private upper-level entry and deck.
Upstairs, the vaulted studio space—tucked under the roof rafters—includes a ¾ bath and can serve a variety of purposes: guest suite, creative workspace, or quiet retreat. With the addition of a kitchenette, it becomes a fully functional accessory dwelling—ideal for extended family, rental income, or a place to live while building a main house.
Simple, flexible, and thoughtfully designed, the Strawbridge is more than a garage—it’s a companion structure with a life of its own.
Strawbridge 415 0B 1B 2G
2 Story
Studio
1 Bathroom
2-Car Garage
Footprint: 22′ x 36′ (including covered deck)
Height to roof peak: 22′
$950.00ADD TO CART
Floor Plans and Elevations PDF

