Morgan Hill

The House You Build

This house is featured in the book The House You Build by Duo Dickinson.

Option:
No lower level. The first and second floors total 1570 sf. The plans call for a basement, but by working with your builder and engineer, the foundation plan may be modified.

 

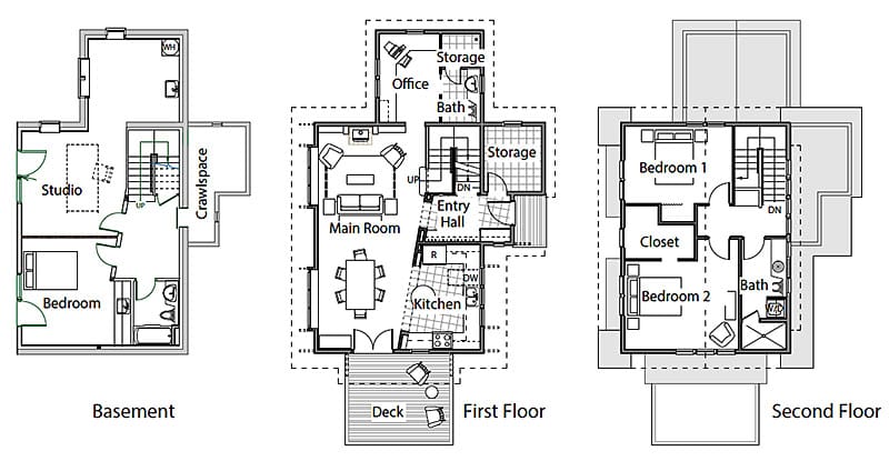
Morgan Hill  2398 3B 2.5B

2 Story
2398 SF
3 Bedrooms
2.5 Bathrooms

Footprint: 54′ x 30′ (includes covered deck)
Height to roof peak: 26′ -8″

$2,400.00ADD TO CART


Floor Plans and Elevations PDF

 

 

 

Frequently Asked Questions

GoodFit License Agreement