Greenwood Studio

This multi-possibility accessory building can be a backyard writing or art studio, an office, a dwelling for an elderly parent or adult child, a guest house, or a rental unit. Or, it might be a commons building for a pocket neighborhood.


 

 

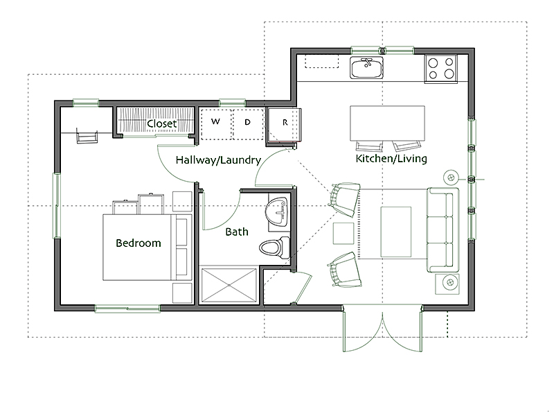
Greenwood Studio  568 1B 1B

1 Story
568 SF
1 Bedroom
1 Bathroom

Footprint: 32’ x 20’ (includes covered porch)
Height to roof peak: 15′ 

$1,900.00ADD TO CART


Floor Plan and Elevations PDF

 

 

Frequently Asked Questions

GoodFit License Agreement