Gable Garage

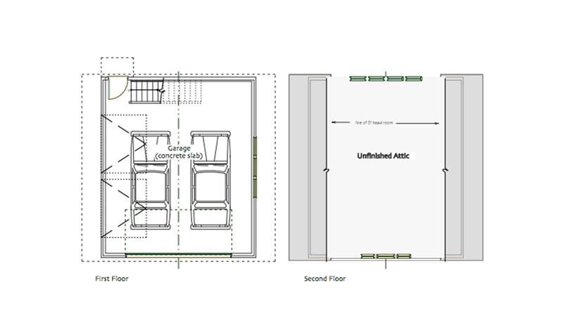
Designed as a companion to the Gable House, this garage echoes the home’s steeply pitched gabled roof, distinctive eaves, and classic shingle detailing. It offers space for two cars, with additional room for storage and a stair leading to an unfinished second floor—ideal for future studio, workshop, or loft space.

 

 

Gable  1083 2G

2 Story
1083 square feet
2-Car Garage
Unfinished Attic: 576 SF

Footprint: 24′ x 28′
Height to roof peak: 23′

 

$450.00ADD TO CART


Floor Plan and Elevations PDF

 

 

 

Frequently Asked Questions

License Agreement