
Erin Family
These modest, buildable homes offer timeless character with just the right touch of detail. A gabled 7:12 roofline gives each home a classic silhouette, while generous front porches—varying in shape and size—extend a warm welcome to the street or courtyard. Inside, rooms open gracefully to one another in an ‘L’ configuration, forming a cohesive living space with light, flow, and function.
The kitchen anchors the main level with a commanding outlook across the serving counter—ideal for daily living or gatherings. In several versions (1227 and 1588), the living room is framed by a cased opening with built-in shelving and opens to a raised ceiling, adding volume and a touch of grandeur. Other versions pair the living and dining rooms in a single space with a higher ceiling.
A signature feature in many of these plans is the winding stair—flanked by windows—that leads to a light-filled landing, just right for a study, reading nook, or small office. Upstairs bedrooms tuck into the roof and feature vaulted ceilings for a sense of spaciousness.
These homes have found a natural place in pocket neighborhoods, where they dovetail with neighboring homes with ‘nested’ open and closed sides to optimize personal space and privacy.

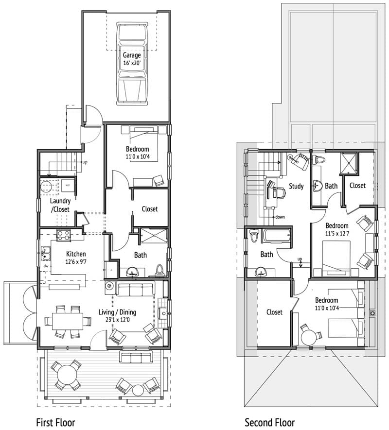
Erin 1227 3B 2B
The smallest of the Erin homes lives larger than its footprint.
A generous, room-sized porch with open rafters and beams welcomes family and friends—or offers a quiet spot for tea and a good book.
Inside, a light-filled living room with a raised ceiling feels open and inviting. A tall bay window and high windows above the stove draw in abundant daylight, while built-in shelves provide space for books and treasured collections.
With a bedroom on the main level and two more above, the home adapts easily to different life stages or household arrangements.
At the top of the stairs, a bright landing—lit by a large skylight and windows—makes an ideal study nook or creative workspace.
A back porch opens to the yard—or, where the site calls for it—can serve as a welcoming front entry.
2 Story
1227 SF
3 Bedrooms
2 Bathrooms
Footprint: 24′ x 40′ (includes covered porch)
Height to roof peak: 22′ -4″
$1,600.00ADD TO CART


Erin 1340 3B 2B 2G
This version of the Erin plan includes a lower-level garage and storage room, along with a covered outdoor storage area. Above, a back terrace opens from the main floor—ideal for container gardening or a quiet place to enjoy the afternoon sun.
Inside, the living room layout—with its raised ceiling—is identical to the 1227 version. A main-level en suite bedroom and bath, with wide doors and generous floor space, support accessible living and aging in place. Upstairs, the front bedroom features a raised sleeping area two steps above the floor, flanked by built-in shelving—ideal for books, display, or tucked-away storage.
2 Story + lower garage
1340 SF
3 Bedrooms
2 Bathrooms
Footprint: 24′ x 48′ (includes covered porches)
Height to roof peak: 29’10” (from garage level)
$1,800.00ADD TO CART

Erin 1588 3B 2B
Designed to front both a street and a courtyard, this version works especially well in a pocket neighborhood setting. A generous porch extends from the courtyard side, while a secondary entry connects to the street.
Inside, the combined dining and living area opens to a raised ceiling, bringing in light and expanding the sense of space. A door from the dining room leads to the side yard—convenient for outdoor dining or letting in fresh air. The main-level en suite bedroom and bath are designed for accessibility, offering ease of movement and long-term flexibility.
Upstairs are two bedrooms, a study, and an office—along with a light-filled stair landing that offers space for a small reading nook or creative workspace.
2 Story
1588 SF
3 Bedrooms
2 Bathrooms
Footprint: 24′ x 48′ (includes covered porches) $1,700.00ADD TO CART
Height to roof peak: 24′ -3″

Erin 1641 3B 2B
Similar in plan to the Erin 1588, this 1641-square-foot home offers a generous wrap-around porch for outdoor dining and seating. The added space allows for a laundry and storage closet off the main hall, plus a larger study and bedroom upstairs. Both rooms feature extra windows, filling them with daylight and expanding the views.
2 Story
1641 SF
3 Bedrooms
2 Bathrooms
Footprint: 32′ x 50′ (includes covered porches)
Height to roof peak: 24′ -3″
$1,800.00ADD TO CART


Erin 1674 3B 3B 1G
This version of the Erin family plans features an attached rear garage and a broad, hipped-roof front porch that welcomes you in. Upstairs, the en suite bedroom is joined by a third bathroom for added convenience. Two dormers open to views on both sides, filling the upper rooms with light.
2 Story
1674 SF
3 Bedrooms
3 Bathrooms
Footprint: 24′ x 70′ (includes covered porch and garage)
Height to roof peak: 24′-3″
$1,900.00ADD TO CART