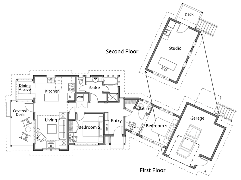
Crab Point Cottage

The root design of this home stems from the Betty Cottage series. This version is upscaled with white board & baton siding, contrasting dark metal-clad wood windows and lattice ornamentation at the entry porch. The interior has been built out with white painted paneling and wood floors. It has two bedrooms on the main floor for single-level living and an attached garage with workspace or office above.

 

Crab Point  1018 2B 1.5B 1G


1 Story
1018 SF
2 Bedrooms
1.5 Bathrooms
1-Car Garage

Studio Above the Garage: 16′ x 31′
Studio Above Garage: 240 SF

Footprint: 76′ -3″ x 26′ (includes covered decks)
Height to roof peak: 19’6″

 

$1,900.00ADD TO CART


Floorplans and Elevations PDF

 

 

 

Frequently Asked Questions

GoodFit License Agreement

 

Coastal Cottage

Crab Point Cottage
was featured in
The Coastal Cottage and
The Cottage Journal.

Cottage Journal