
Coho Cottage
The Coho is a cottage that invites a smile — informal yet classic, with timeless appeal and personality inside and out. A simple gabled roof and welcoming front porch add character and charm to any setting.
Step onto the generous, room-sized porch — perfect for morning coffee, evening meals, or a quick hello. The railing is set just right to rest a drink or book, while raised flower boxes bring seasonal color and life.
Inside, the main room opens to a lofted ceiling with skylights and windows that fill the space with natural light. A wall of built-in bookshelves and a gas stove anchor the living area.
The kitchen is efficient yet generous, with an island for prep, storage, and casual meals. Tucked to one side, the dining alcove features deep-silled windows and soft light over the table — ideal for shared meals or quiet mornings.
A second-floor study overlooks the main space, offering a tucked-away workspace with a sense of connection.
Multiple versions of the Coho offer options for a range of households and needs, but all share the same spirit: cottage character, light-filled, and grounded in thoughtful design.
Coho 1168 2B 2B
This version features two bedrooms on the first floor and a bedroom and bath on the second floor.
2 Story
1168 SF
2 Bedrooms
2 Bathrooms
Footprint: 22′ x 46′ (includes covered porch)
Height to roof peak: 20′ -1″
$1,600.00ADD TO CART

Coho 1218 3B 2B
This version features two bedrooms on the first floor. French doors on the second floor study/landing open to a bedroom with a vaulted ceiling.
2 Story
1218 SF
3 Bedrooms
2 Bathrooms
Footprint: 22′ x 46′ (includes covered porch)
Height to roof peak: 20′ -1″
$1,600.00ADD TO CART

Coho 1295 2B 2.5B
This version features an en suite bedroom/bath on the first floor, along with an office and mudroom/laundry with a back door to a porch.
2 Story
1295 SF
2 Bedrooms
2.5 Bathrooms
Footprint: 22′ x 59′ (includes covered porch)
Height to roof peak: 20′ -1″
$1,600.00ADD TO CART

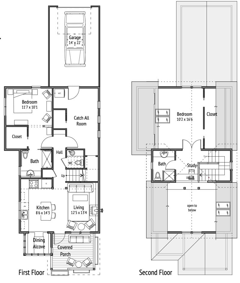
Coho 1439 2B 2.5B 1G
This version has an en suite bedroom/bath and “catch all” room on the main floor, and an attached garage.
2 Story
1439 SF
2 Bedrooms
2.5 Bathrooms
1-Car garage
Footprint: 26′ x 70′ (includes covered porch and garage)
Height: 20′ -10″
$1,800.00ADD TO CART
Frequently Asked Questions
License Agreement

