
Betty Sisters
The Betty Cottages: a family of charming one-story homes. Step inside from a room-sized front porch into the main room – a vaulted ceiling rises from 10-foot-high side walls and light comes in from windows on three sides, making this space feel surprisingly large. A cozy eating alcove off the kitchen is a lovely spot for a meal or homework.
Betty Lu 708 1B 1B
The Betty Lu is the smallest of the sisters. At just over 700 square feet, this one-bedroom cottage will fit into most backyards as a sweet home for a small household. It has a light-filled main room, a cozy eating alcove, a study and a porch with flower boxes.
1 Story
708 SF
1 Bedroom
1 Bathroom
Footprint: 24′ x 34′
Height to roof peak: 15′ -4″
$1,250.00ADD TO CART
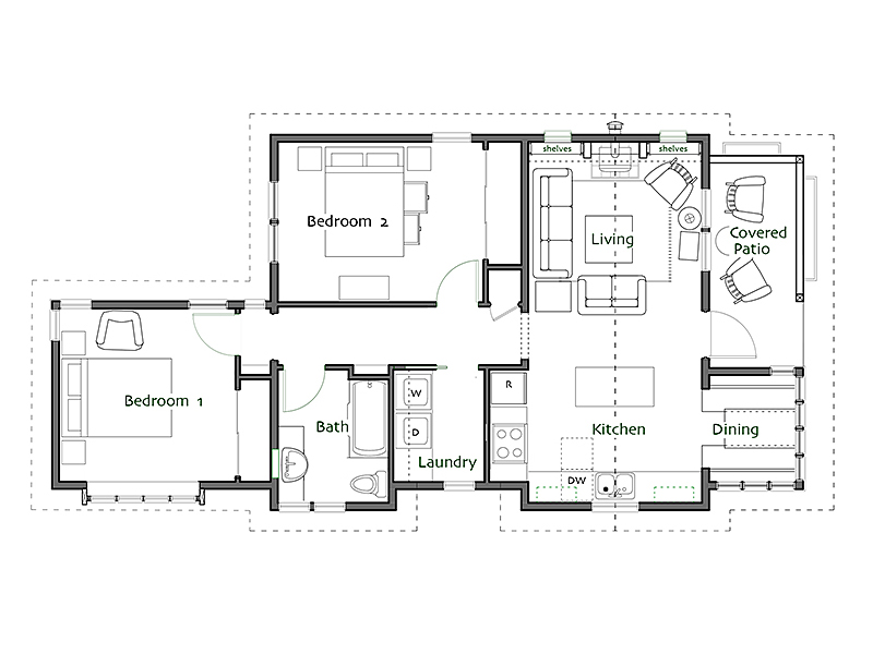
Betty LuLu 875 2B 1B
Betty LuLu is the larger version of the Betty Lu – this one with two bedrooms and a laundry. The main room of these cottages is a 10-feet high measured at the base of the vaulted ceiling, making it feel larger than it appears on the outside.
1 Story
875 SF
2 Bedrooms
1 Bathroom
Footprint: 24′ x 48′(includes covered porch)
Height to roof peak: 15′ -4″
$1,450.00ADD TO CART
Betty Gable 838 2B 1B
The Betty Gable features a gabled roof facing the front with a spot for an artistic painting or creative accent. Betty Gable was featured in The New Cottage by Katie Hutchison.
1 Story
838 SF
2 Bedrooms
1 Bathroom
Footprint: 24′ x 41’8″ (includes covered porch)
$1,450.00ADD TO CART
Betty Jane 838 2B 1B
The Betty Jane is identical to the Betty Gable, except it has a gabled roof and vaulted ceiling running parallel with the porch.
1 Story
838 SF
2 Bedrooms
1 Bathroom
Footprint: 24′ x 41’8″ (includes covered porch)
$1,450.00ADD TO CART

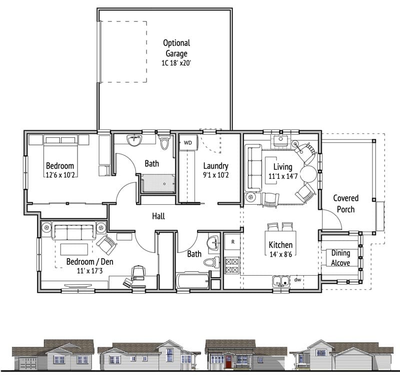
Betty Rose 1079 2B 2B 1G
This Betty sister has an ensuite bedroom/bath, a second bedroom/den, and a laundry/storage room. An optional attached garage is available. This plan is full accessible with 36″ doors and roll-in shower.
1 Story
1079 SF
2 Bedrooms
2 Bathrooms
Optional 1-Car Garage
Footprint: 22′ x 52′ (includes covered porch)
Footprint: 40′ x 52′ (includes covered porch, garage)
Height roof to peak: 15’5
$1,750.00ADD TO CART
Betty Sue 1060 2B 2B 1G
Betty Sue is another version of the Betty’s with an attached garage. This would fit on a narrow lot with car access from the rear.
1 Story
1060 SF
2 Bedrooms
2 Bathrooms
1-Car Garage
Footprint: 27′ x 60′ (includes covered porch and garage)
$1,750.00ADD TO CART









