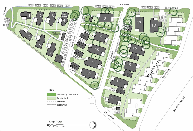
Wyer’s End
Wyers End is a pocket neighborhood of 18 homes and cottages nestled on a hillside near the center of White Salmon, Washington. It was developed by Henry Fischer and Randy Orzek and built by Skyward Construction.
2010 Sunset/AIA Western Home Awards
Ross Chapin Architects received an honorable mention
in the Urban Living Space category for Wyers End
